All sided elevation details of single story cottage house dwg file
Description
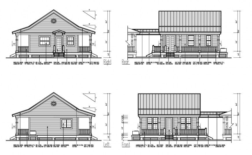
All sided elevation details of single story cottage house that includes a detailed view of flooring view with doors and windows view and staircase view details, balcony view with wall design, dimensions and roof or terrace view and much more of house details.

Uploaded by:
Eiz
Luna
