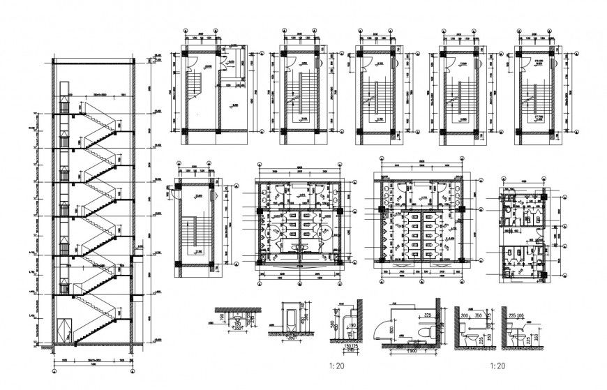
Multi story hotel building section, floor plan, staircase and sanitary details dwg file
Description
Multi story hotel building section, floor plan, staircase and sanitary details that includes a detailed view of flooring view with doors and windows view and staircase view details, balcony view with parking area with outdoor garden, reception area with waiting lounge, dining area with banquet hall and kitchen with staff room and sanitary facilities, staircase details and much more of hotel details.

Uploaded by:
Eiz
Luna
