Warehouse floor plan and site plan cad drawing details dwg file
Description
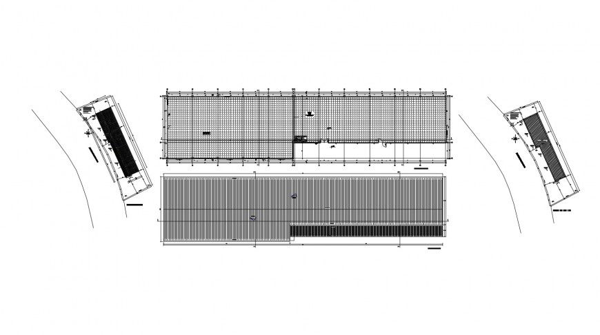
Warehouse floor plan and site plan cad drawing details that includes a detailed view of wide roads and tree and plants with block numbers with main entry gate and security check area, garden area and loading area details and parking area provide. Machinery details with administration office details and much more of warehouse details.

Uploaded by:
Eiz
Luna

