Classroom main and back elevation and construction cad drawing details dwg file
Description
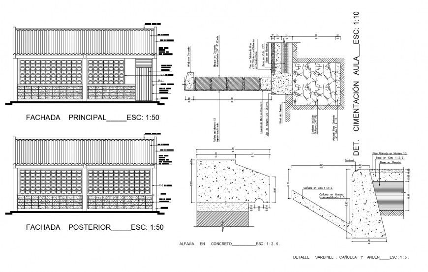
Classroom main and back elevation and construction cad drawing details that includes a detailed view of doors and windows view with footings details, column view and beam construction, covers closure type with soil buried wall closure and interior partition and granite veneer of the country and much more of class room details.

Uploaded by:
Eiz
Luna
