Religious mosque floor distribution plan cad drawing details dwg file
Description
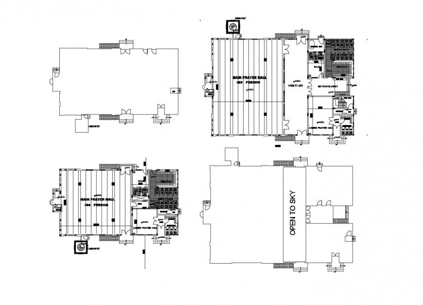
Religious mosque floor distribution plan cad drawing details that includes a detailed view of main entry gate, parking area, garden details, prayer hall, dimension and not to scale details and much more of mosque details.

Uploaded by:
Eiz
Luna

