Roof top plan & section design drawings of 2storey house design
Description
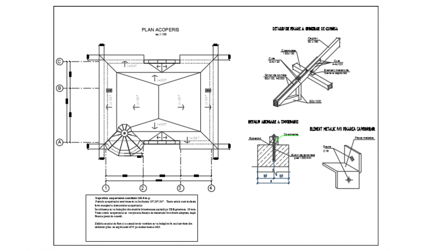
Here the Roof top plan & section design drawings of 2storey house design, DETAIL OF FIXING OF THE CORNISA GRINDS section detail, COSOROABE ANCHOR DETAIL section detail, METALLIC ELEMENT FOR PUSHING COVERS section detail, The roof area is 230.0 m.p., The slopes of the roof are inclined at 10 °, 30 °, 54 °. All allowances are indicated between the edges of the roof elements. The coating will be made from bituminous shingles placed on OSB thickness 30 mm. All roof elevations will be specified depending on the envelope material adopted after fixing the ridge panel. The masonry chimney and ventilation ducts will be exclusively made of bricks filled with M75 burnt clay on mortar M25.
Uploaded by:
Eiz
Luna

