Structural layout plan of residential family housing design drawing
Description
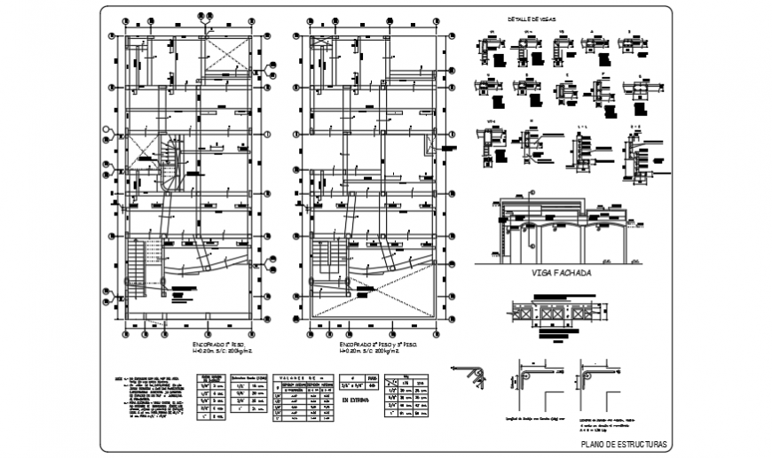
Here the Structural layout plan of residential family housing design drawing with ground floor, first floor structure plan design, beam detail design, column detail design, reinforcement section detail design drawing in this auto cad file.
Uploaded by:
Eiz
Luna

