Sanitary installation design of priority housing of 2 levels design.
Description
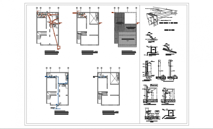
Here the Sanitary installation design of priority housing of 2 levels design with pipe line design drawing water pipe line, waste water pipe line design drawing, WATER CHANNEL SCHEME RAINS section detail design drawing, TYPES OF HOME CONNECTIONS section detail design drawing, COLLECTOR WITH HOME CONNECTION IN TEE section design drawing, CONNECTION DETAIL WASHING MACHINE section detail , LAVAMANOS CONNECTION DETAIL section detail, COLECTOR WITH HOME CONNECTION IN YEE detail, design drawing in this auto cad file.
Uploaded by:
Eiz
Luna

