Court building floor plan and electrical layout plan cad drawing details dwg file
Description
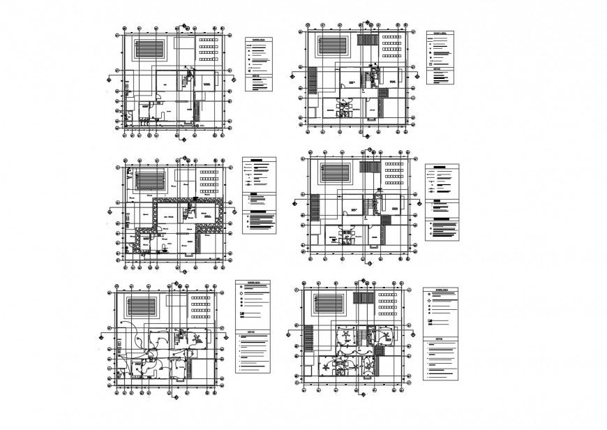
Court building floor plan and electrical layout plan cad drawing details that includes a detailed view of free download file of power layout details and lighting layout details, computation and schedule of loads with general notes and specifications, panel board details, riser diagram with waiting area and cabin and computer lab with counseling room and library and conference room details and much more of court details.

Uploaded by:
Eiz
Luna

