Three story residential building floor and electrical layout plan cad drawing details dwg file
Description
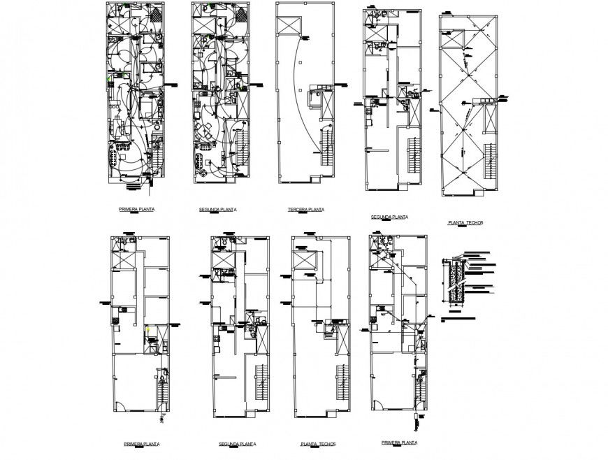
Three story residential building floor and electrical layout plan cad drawing details that includes a detailed view of free download file of power layout details and lighting layout details, computation and schedule of loads with general notes and specifications, panel board details, riser diagram with main entry house door, drawing room and living room with family hall details kitchen and dining area, indoor staircases and laundry area and balcony, details and bedroom and much more of building details.

Uploaded by:
Eiz
Luna
