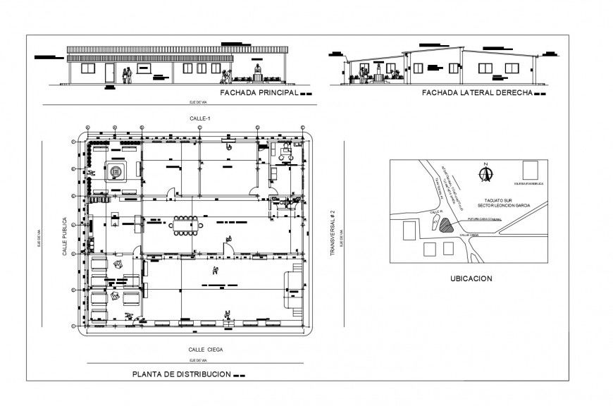
Community center concrete blocks wood roof elevation, section and plan cad drawing details dwg file
Description
Community center concrete blocks wood roof elevation, section and plan cad drawing details that include a detailed view of flooring view with doors and windows view and staircase view details, balcony view with wall design, dimensions and roof or terrace view with main entry gate, children play area and common lobby, theater and passage details, display area and shopping plaza department, green space, gallery and theme restaurant details, viewing gallery, kitchen and waiting area, open space with sanitary facilities and much more of center details.

Uploaded by:
Eiz
Luna

