Office room blocks detail drawing in autocad software
Description
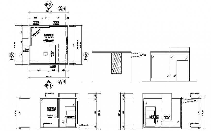
Office room blocks detail drawing in autocad software which shows section line and dimension details with different sides elevation of office. Section details and furniture blocks details are also included in the drawing.

Uploaded by:
Eiz
Luna

