Internet cafe store architecture layout plan cad drawing details dwg file
Description
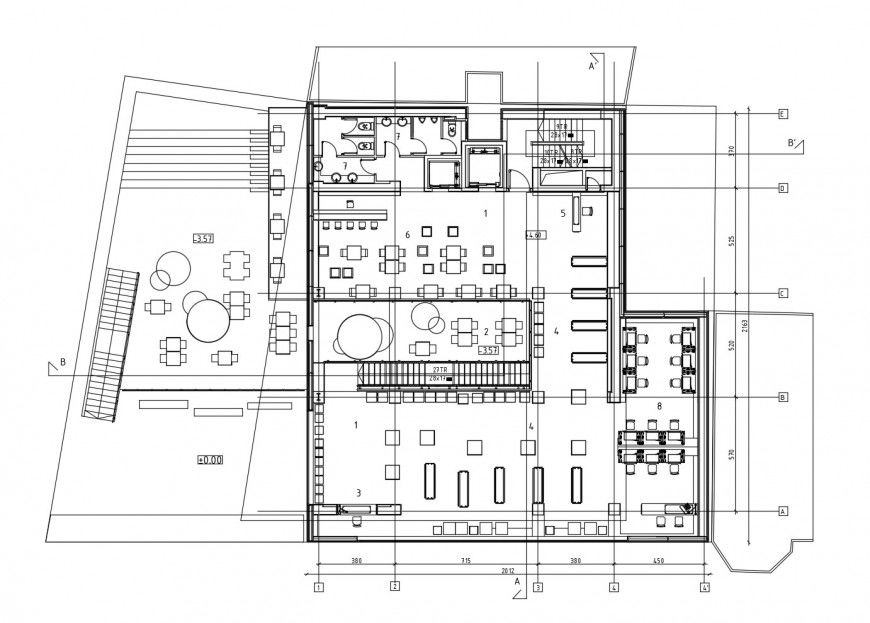
Internet cafe store architecture layout plan cad drawing details that includes a detailed view of reception area with waiting area and cabin and computer lab with counseling room and library and conference room details, furniture layout, dimensions and not to scale and much more of cafe store details.
File Type:
DWG
File Size:
134 KB
Category::
Interior Design
Sub Category::
Showroom & Shop Interior
type:
Gold

Uploaded by:
Eiz
Luna

