Sanitary toilet blocks detail plan and section autocad file
Description
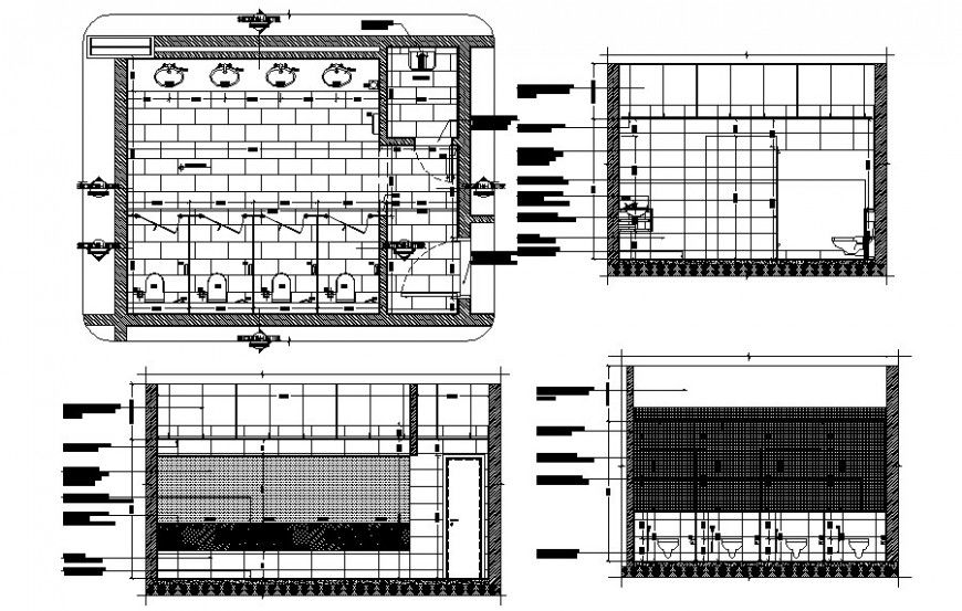
Sanitary toilet blocks detail plan and section autocad file which includes sanitary water closet details with washbasin details with dimension and hidden line details. Section details and door ventilation details are also included in the drawing.
File Type:
DWG
File Size:
225 KB
Category::
Dwg Cad Blocks
Sub Category::
Sanitary CAD Blocks And Model
type:
Gold

Uploaded by:
Eiz
Luna

