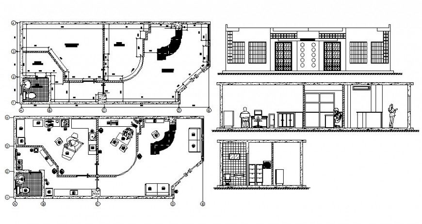
Dental clinic work plan details plan elevation and section in autocad
Description
Dental clinic work plan details plan elevation and section in autocad which includes furniture units details in building with dimension and hidden line details. Sanitary toilet details with section and elevation are also shown in the drawing.

Uploaded by:
Eiz
Luna

