Ground floor distribution plan drawing details for luxuries villa dwg file
Description
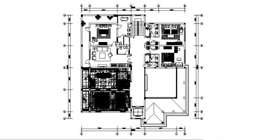
Ground floor distribution plan drawing details for luxuries villa that includes a detailed view of car parking view, garden area, main entry house door, drawing room, living room, family hall, kitchen, dining area, indoor staircases, laundry area, balcony, bedroom, master bedroom, toilets and bathroom, indoor doors, furniture details and much more of house villa project.

Uploaded by:
Eiz
Luna

