Restaurant cover plan and floor plan cad drawing details dwg file
Description
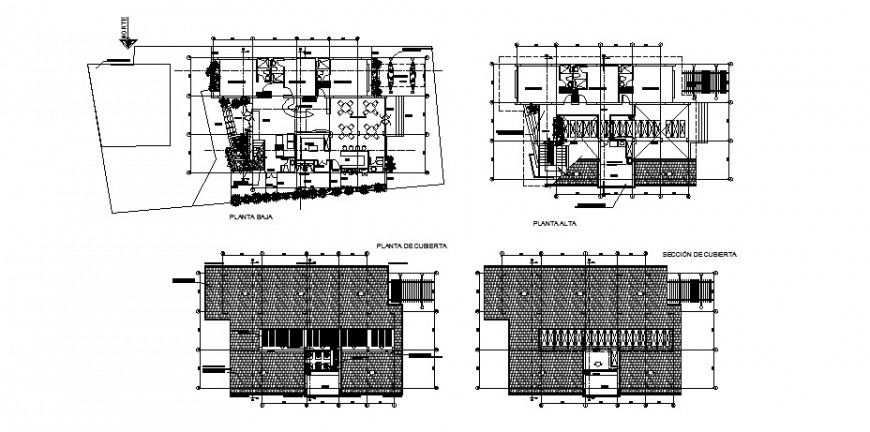
Restaurant cover plan and floor plan cad drawing details that includes a detailed view of area details, dimensions details, car parking view with reception area, waiting lounge, dining area, banquaet hall, kitchen, cleaning department, staff room, sanitary facilities, furniture details, interior details and much more of restaurant project.

Uploaded by:
Eiz
Luna

