Two-story house ground and first floor plan cad drawing details dwg file
Description
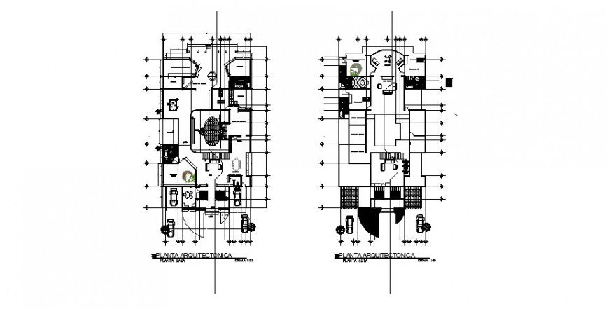
Two-story house ground and first floor plan cad drawing details dwg that includes a detailed view of main entry house door, drawing room, living room, family hall, kitchen, dining area, indoor staircases, laundry area, balcony, bedroom, master bedroom, toilets and bathroom, indoor doors, furniture details and much more of house project.

Uploaded by:
Eiz
Luna

