House first and second floor plan and electrical layout plan cad drawing details dwg file
Description
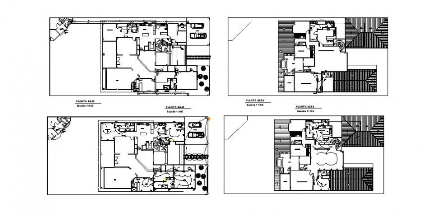
House first and second floor plan and electrical layout plan cad drawing details that includes a detailed view of car parking area, main entry house door, drawing room, living room, family hall, kitchen, dining area, indoor staircases, laundry area, balcony, bedroom, master bedroom, toilets and bathroom, indoor doors, furniture details, power layout details, lighting layout details, computation and schedule of loads, general notes and specifications, panel board details, riser diagram, convienence details, legends and electric equipment details, cable details, dimensions details and much more of house details.

Uploaded by:
Eiz
Luna

