Pump house and guard room detailed architecture project dwg file
Description
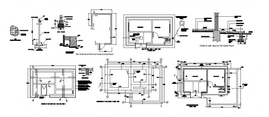
Pump house and guard room detailed architecture project that includes a detailed view of electric pole section details, plan details, electric symbol details, dimensions details, foundation plan details, window bars details, cover door details, metal door details, electrical plan details and much more of pump house details.

Uploaded by:
Eiz
Luna

