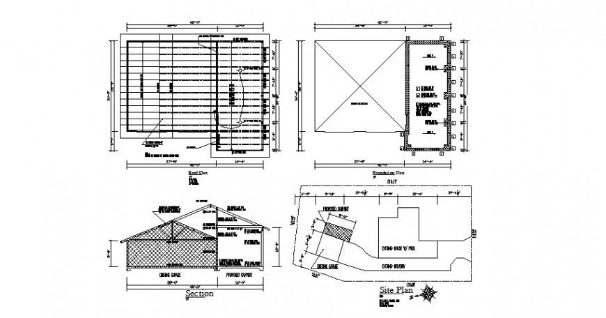
House foundation, roof plan, site plan and constructive section details dwg file
Description
House foundation, roof plan, site plan and constructive section details that includes a detailed view of flooring view, wall construction, memory of materials, footings details, column view, beam construction, covers closure type, soil burried wall closure , foundation plan details, site plan details, existing area details, conceret slab details and much more of house building details.

Uploaded by:
Eiz
Luna
