Drawing room flooring layout and furniture layout cad drawing details dwg file
Description
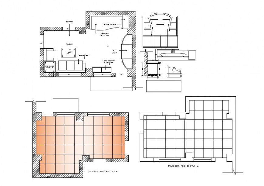
Drawing room flooring layout and furniture layout cad drawing details that includes a detailed view of area details, dimensions detailes, furniture layout details, like sofa set, table details, carpet details, tv cabinet and much more of drawing room details.
File Type:
DWG
File Size:
38 KB
Category::
Interior Design
Sub Category::
Living Room Interior Design
type:
Gold

Uploaded by:
Eiz
Luna

