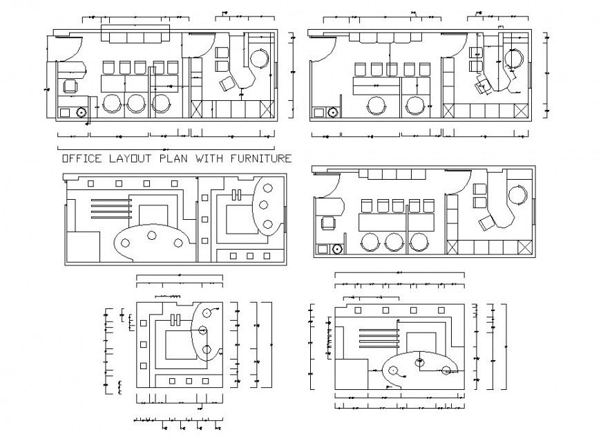
Office layout plan details with furniture cad drawing details dwg file
Description
Office layout plan details with furniture cad drawing details that includes a detailed view of reception area, office desks, chair and tables, reception table, waiting area, cabin, bottom false ceiling, computer lab, bottom of grid ceiling, counselling room and library, conference room, manager cabin, meeting room, cleaning department, departmental office, smoking area, head offices, accountant rooms, pantry, kitchen, dining area, server room, meeting room, pantry and much more of office building details.
File Type:
DWG
File Size:
160 KB
Category::
Interior Design
Sub Category::
Modern Office Interior Design
type:
Gold

Uploaded by:
Eiz
Luna

