General one family house distribution plan cad drawing details dwg file
Description
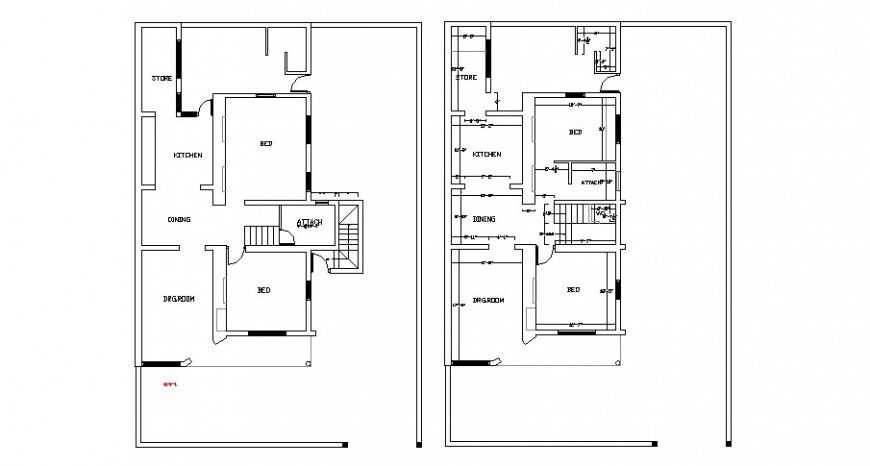
General one family house distribution plan cad drawing details that includes a detailed view of main entry house door, drawing room, living room, family hall, kitchen, dining area, indoor staircases, laundry area, balcony, bedroom, master bedroom, toilets and bathroom, indoor doors and much more of house project.

Uploaded by:
Eiz
Luna

