Infosys office building floor distribution plan cad drawing details dwg file
Description
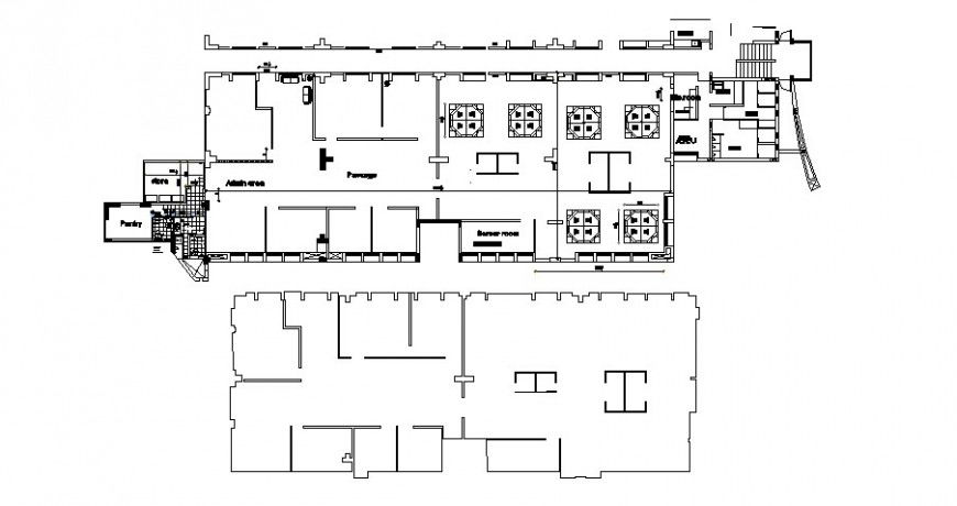
Infosys office building floor distribution plan cad drawing details with structure that includes a detailed view of reception area, waiting area, cabin, cash counters, bottom false ceiling, computer lab, bottom of grid ceiling, counselling room and library, conference room, manager cabin, meeting room, cleaning department, departmental office, smoking area, head offices, accountant rooms, pantry, kitchen, dining area, server room, meeting room, pantry and much more of bank office floor plan details.

Uploaded by:
Eiz
Luna

