Constructive section, plan and staircase details of shoe store dwg file
Description
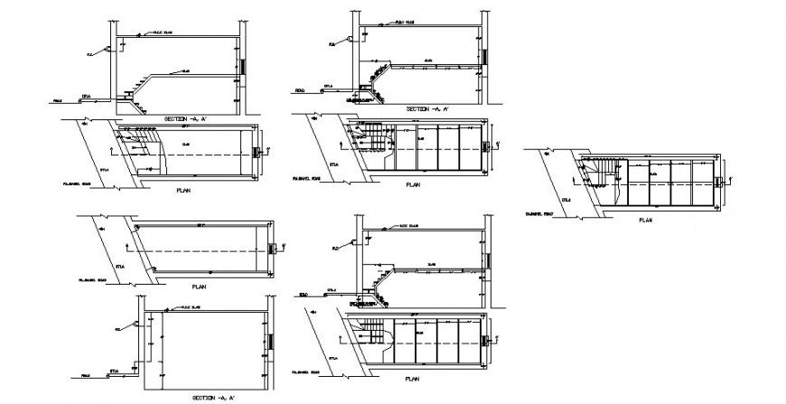
Constructive section, plan and staircase details of shoe store that includes a detailed view of flooring view, doors and windows view, staircase view, balcony view, wall design, dimensions, roof or terrace view, slab details, staircase sectional and structure details, measures details, material details and much more of store details.
File Type:
DWG
File Size:
127 KB
Category::
Interior Design
Sub Category::
Showroom & Shop Interior
type:
Gold

Uploaded by:
Eiz
Luna

