Building working plan with electrical installation 2d view dwg file
Description
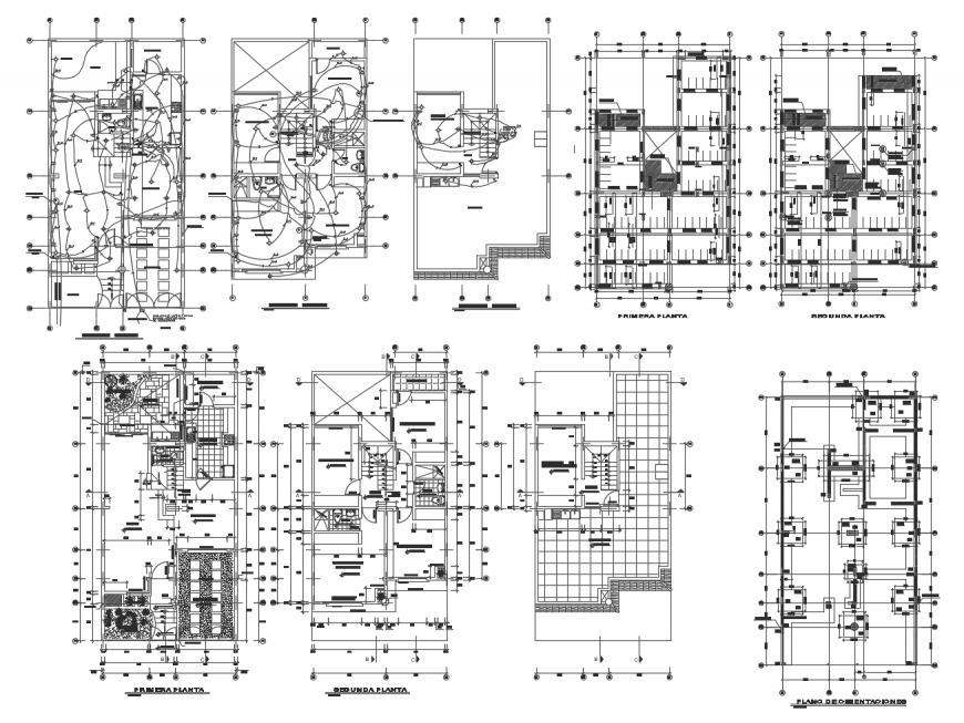
Building working plan with electrical installation 2d view dwg file, plan view detail, door and window detail, wall and flooring detail, electrical wire detail, staircase detail, dimension detail, foundation plan detail, floor level detail, hidden line detail, earthing wire detail, sanitary toilet detail, hidden line detail, RCC structure, etc.

Uploaded by:
Eiz
Luna

