Multi-family residential building ground, first floor and second floor distribution plan details dwg file
Description
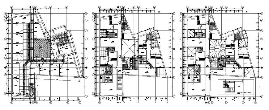
Multi-family residential building ground, first floor and second floor distribution plan details that includes a detailed view of main enetry gate, car parking floor, garden area, tree and plants details, main entry house door, drawing room, living room, family hall, kitchen, dining area, indoor staircases, laundry area, balcony, bedroom, master bedroom, toilets and bathroom, indoor doors, furniture details and much more of house project.

Uploaded by:
Eiz
Luna
