House ground and first floor sanitary installation and structure details dwg file
Description
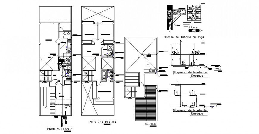
House ground and first floor sanitary installation and structure details that includes a detailed view of main entry house door, drawing room, living room, family hall, kitchen, dining area, indoor staircases, laundry area, balcony, bedroom, master bedroom, toilets and bathroom, indoor doors, furniture details, toilet sectional details, passage, sanitary equipment installation details, doors and ventilation details, plumbing details, interior details, dimensions details, wall section details and much more of house project.

Uploaded by:
Eiz
Luna

