Hospital building distribution plan, sanitary installation, structure and auto-cad details dwg file
Description
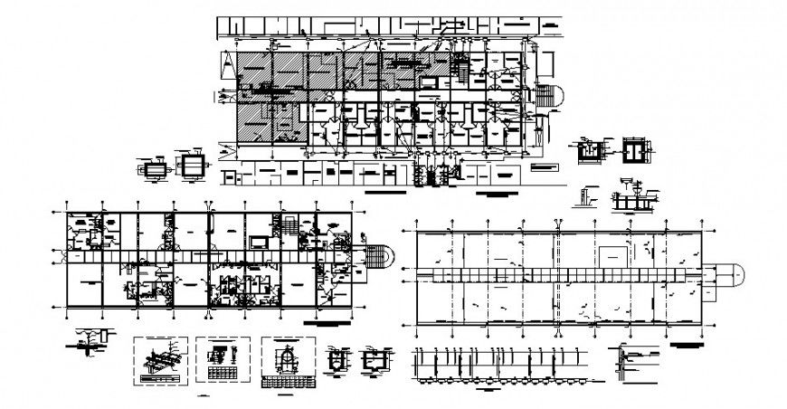
Hospital building distribution plan, sanitary installation, structure and auto-cad details operation theater, cleaning departments, pharmacy stores, special and general ward, specimen collection, emergency laboratory, imagenology, laboratories, foundation, side typical shoe, typical central shoe, columns, foundations, shoes, cistern tank, walls of concr. arm., beams flat, peralted beams, foundation beams, (cement: sand: crushed stone), typical detail of reinforcement and ended of walls of masonry, detail of cistern, cure the concrete by wet way minimum 7 days, - avoid splices and overlaps in areas of maximum effort and much more of hospital project.

Uploaded by:
Eiz
Luna

