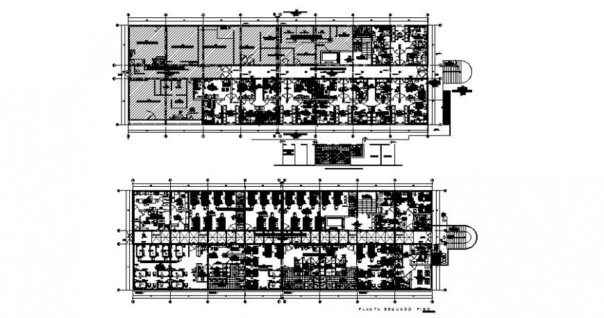
First and second floor distribution plan details of multi-specialist hospital dwg file
Description
First and second floor distribution plan details of multi-specialist hospital that includes a detailed view of reception area, waiting area, consultant room, specialized departments, operation theater, cleaning departments, pharmacy stores, special and general ward, specimen collection, emergency laboratory, imagenology, laboratories, circumbulatory, waiting rooms, sanitary man, duct, central nursing, sanitary, x-ray, tomography, mastography and desitography, rest area and sanitary, development and printing , interpretation, emergency laboratory, special tests, washing and stirilization, classification and distribution of samples, washing and sterilization, culture media and much more of hospital plan.

Uploaded by:
Eiz
Luna

