Sanitary installation plan details for multi-flooring house building dwg file
Description
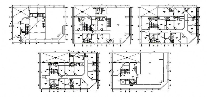
Sanitary installation plan details for multi-flooring house building that includes a detailed view of toilet sectional details, passage, sanitary equipment installation details, doors and ventilation details, plumbing details, interior details, dimensions details, wall section details and much more of sanitary installation details.
File Type:
DWG
File Size:
243 KB
Category::
Interior Design
Sub Category::
Bathroom Interior Design
type:
Gold

Uploaded by:
Eiz
Luna
