Telephonic control office building architecture layout plan details dwg file
Description
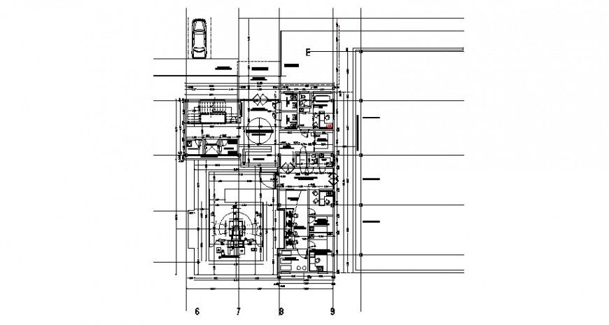
Telephonic control office building architecture layout plan details that includes a detailed view of main entry gate, garden area, guard cabin, parking area, csr facilities, reception area, waiting area, cabin, bottom false ceiling, computer lab, bottom of grid ceiling, counselling room and library, conference room, manager cabin, meeting room, cleaning department, departmental office, smoking area, head offices, accountant rooms, pantry, kitchen, dining area, server room, meeting room, pantry and much more of office building details.

Uploaded by:
Eiz
Luna

