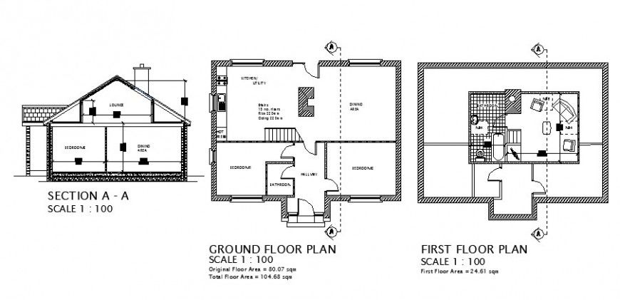
Small house section, ground and first floor plan cad drawing details dwg file
Description
Small house section, ground and first floor plan cad drawing details that includes a detailed view of flooring view, doors and windows view, staircase view, balcony view, wall design, dimensions, roof or terrace view, main entry house door, drawing room, living room, family hall, kitchen, dining area, indoor staircases, laundry area, balcony, bedroom, master bedroom, toilets and bathroom, indoor doors, furniture details and much more of house details.

Uploaded by:
Eiz
Luna
