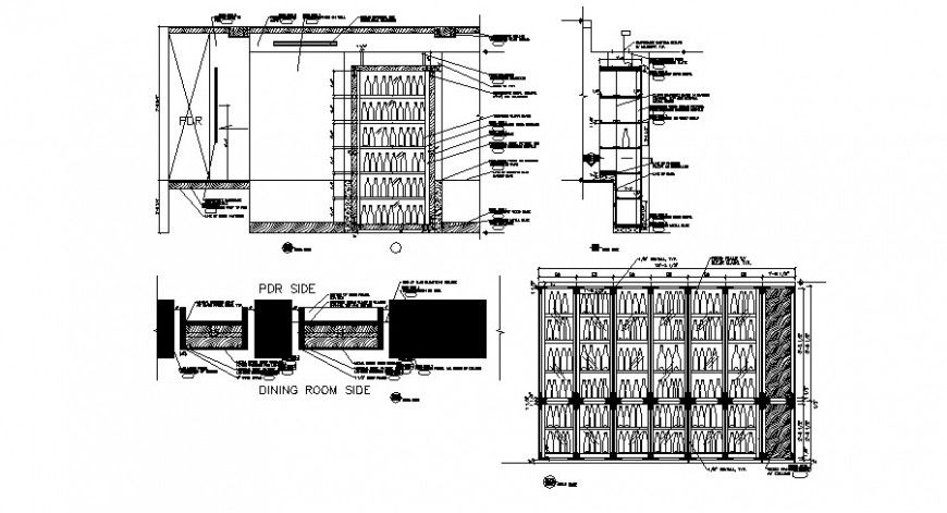
Bottle bar cabinet section, car pantry, plan and auto-cad details dwg file
Description
Bottle bar cabinet section, car pantry, plan and auto-cad details that includes a detailed view of cabinet elevation details, section details with counter top support, carpentry details, adjustable shelving, dimensions details, wall mounting plate and much more of cabinet details.

Uploaded by:
Eiz
Luna

