Column section and constructive structure cad drawing details dwg file
Description
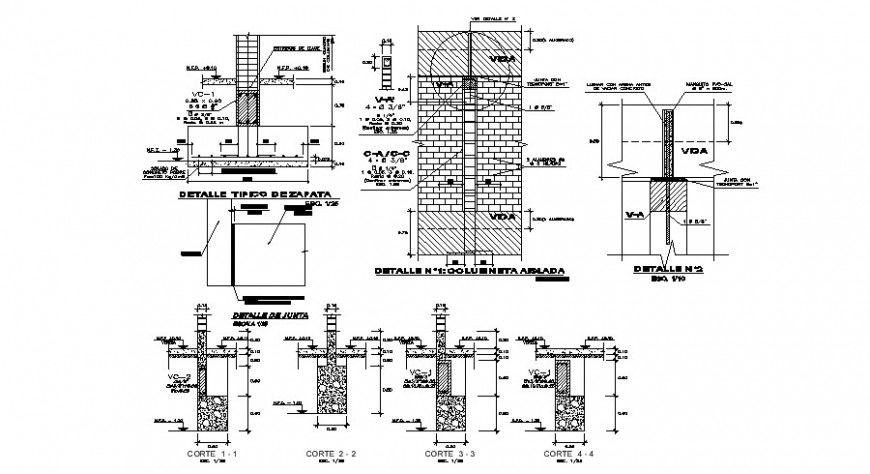
Column section and constructive structure cad drawing details that includes a detailed view of typical transverse reinforcement details for flexurals members in seisnic zone, typical splice location for column, details of beam reinforcement passing through column, column junction details, dimensions details and much more of column details.

Uploaded by:
Eiz
Luna

