Residential villa section and water tank installation details dwg file
Description
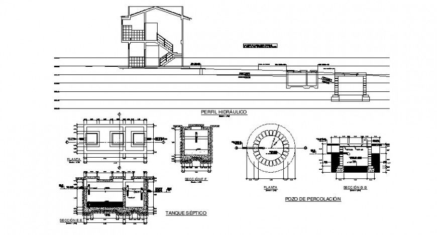
Residential villa section and water tank installation details that includes a detailed view of flooring view with doors and windows view and staircase view deyails, balcony view with wall design, dimensions and roof or terrace view with method of fixing water gauge meter for domestic aise withing the cavity of boundry wall, septic tank plan details, elevation and all sided sectional details, dimensions details and much more of villa details.

Uploaded by:
Eiz
Luna
