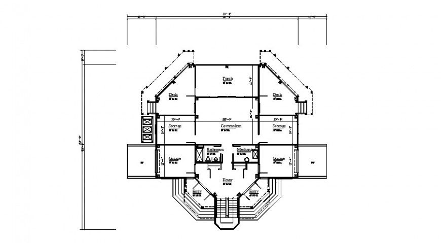
Commercial building detailing drawing in autocad format
Description
Commercial building detailing drawing in autocad format, room and cabins detail, wall and flooring detail, door and window detail, dimension detail, floor level detail, hidden line detail, RCC structure, staircase detail, etc.

Uploaded by:
Eiz
Luna

