Electrical Light Pole Section & Install DWG File
Description
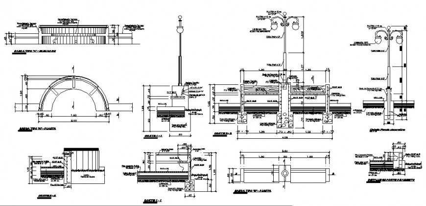
Electrical light pole section, installation and auto-cad details that includes a detailed view of pole footing construction with stairs concrete base, aluminium pole with lighting and power layout details with lighting equipment details with measures and joints, constructive details, cuts and much more of pole details.
File Type:
3d max
File Size:
889 KB
Category::
Electrical
Sub Category::
Electrical Automation Systems
type:
Gold
Uploaded by:
Eiz
Luna

