Sanitary installation details for office building cad drawing dwg file
Description
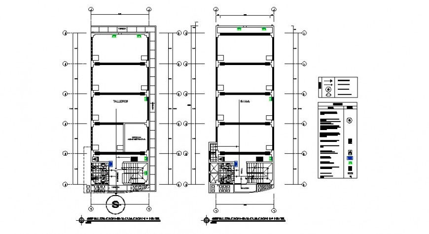
Sanitary installation details for office building cad drawing that includes a detailed view of toilet plan details with toilet sectional details and passage, sanitary equipment installation details, doors and ventilation details, plumbing details and interior details with dimensions details, wall section details and much more of sanitary installation details.

Uploaded by:
Eiz
Luna

