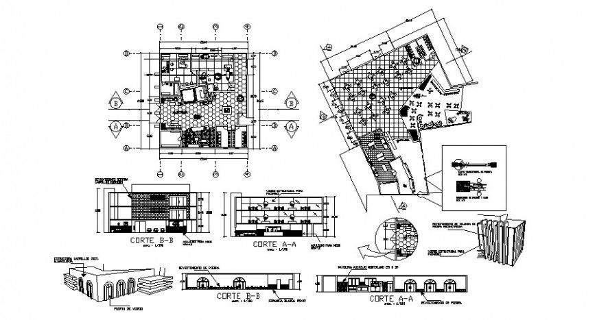
Indoor restaurant of hotel building all sided section and layout plan cad drawing details dwg file
Description
Indoor restaurant of hotel building all sided section and layout plan cad drawing details that includes a detailed view of car parking view with garden area, reception area with waiting lounge, dining area with banquaet hall and kitchen and cleaning department details, staff room and sanitary facilities, furniture details with interior details and much more of restaurant project.

Uploaded by:
Eiz
Luna

