Electrical installation layout plan details of beach house dwg file
Description
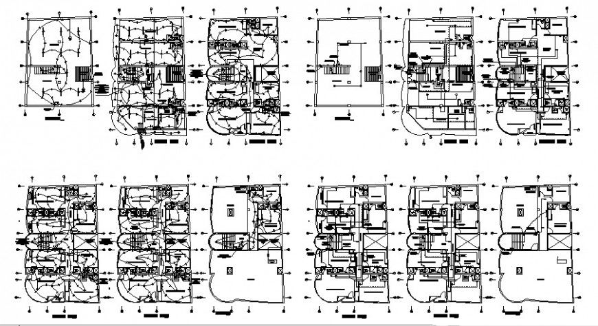
Electrical installation layout plan details of beach house that includes a detailed view of power layout details and lighting layout details, computation and schedule of loads with general notes and specifications, panel board details, riser diagram, convienence details, legends and electric equipment details, cable details and dimensions details with main entry house door, drawing room and living room, family hall details kitchen and dining area, indoor staircases and laundry area and balcony and much more of electrical installation details.

Uploaded by:
Eiz
Luna

