Proposed press club ceiling plan, constructive section and auto-cad details dwg file
Description
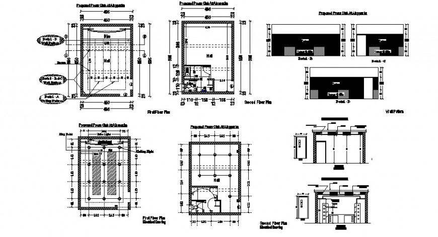
Proposed press club ceiling plan, constructive section and auto-cad details that includes a detailed view of Smooth embossed and riveted zinc-alum roof with vapor barrier details dynafoil asphalt felt, structural osb board with expanded polystyrene, Extruded plywood, Piece pine wood, brushed dry with Vapor concrete base placement of luminaire in the f.c.r. of fiber plates, mineral types zumtobel staff panos-hf-200, detail "a" detail of change of level of acoustic tiles, isometry of baldosa acustica and much more of club details.
File Type:
DWG
File Size:
157 KB
Category::
Interior Design
Sub Category::
Showroom & Shop Interior
type:
Gold

Uploaded by:
Eiz
Luna

