Bi-familiar house elevation, section, distribution plan, framing plan and auto-cad details dwg file
Description
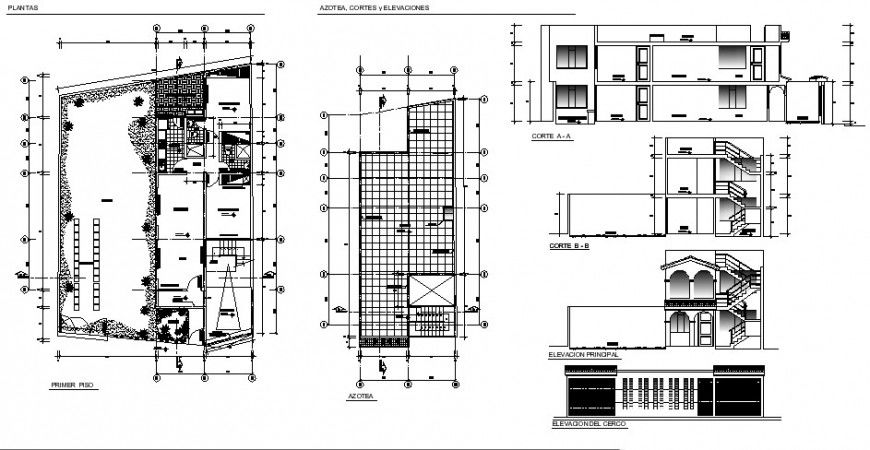
Bi-familiar house elevation, section, distribution plan, framing plan and auto-cad details that includes a detailed view of main entry gate with parking floor and garden area with tree and plants details, main entry house door, drawing room and living room, family hall details kitchen and dining area, indoor staircases and laundry area and balcony, details and bedroom or master bedroom, toilets and bathroom with indoor doors, furniture details and much more of house project.

Uploaded by:
Eiz
Luna
