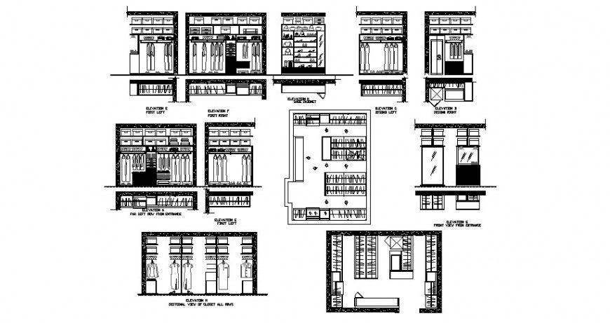
Wardrobe elevation, section and plan cad drawing details dwg file
Description
Wardrobe elevation, section and plan cad drawing details that includes a detailed view of wardrobe elevation details, section details, plan details etc with door details, draweer details, car pantry details, colors details, size details, type details etc for multi purpose uses for cad projects.

Uploaded by:
Eiz
Luna
