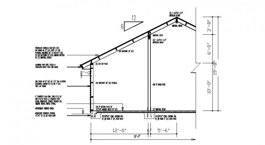
Sectional detail of roofing structure 2d view in autocad format
Description
Sectional detail of roofing structure in autocad format consists of various roof parts like purlin details, principal rafter detail, roof span details, welded and bolted joints and connections detail, main and sag tie details, roofing material detail, dimension detail, not to scale drawing, etc.
File Type:
DWG
File Size:
93 KB
Category::
Construction
Sub Category::
Construction Detail Drawings
type:
Gold

Uploaded by:
Eiz
Luna

