One story single family house detailed architecture project dwg file
Description
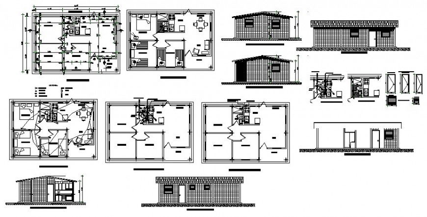
One story single family house detailed architecture project that includes a detailed view of flooring view, sanitary and electrical installation details, structure details, doors and windows view, staircase sectional details, balcony view, wall sections and dimensions details with main entry house door, drawing room and living room, family hall details kitchen and dining area, indoor staircases and laundry area and balcony, details and bedroom or master bedroom, toilets and bathroom with indoor doors, furniture details and much more of house project.

Uploaded by:
Eiz
Luna

