Arces office ground floor layout plan cad drawing details dwg file
Description
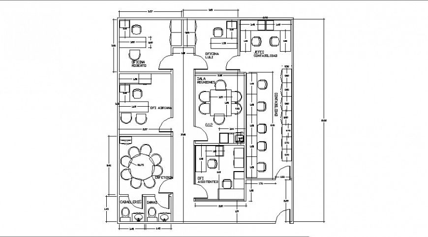
Arces office ground floor layout plan cad drawing details that includes a detailed view of reception area with waiting area and cabin bottom false ceiling, computer lab and bottom of grid ceiling, counselling room and library and conference room details, manager cabin and meeting room, cleaning department with departmental office, smoking area, head offices, accountant rooms and pantry, kitchen and dining area, server room and meeting room and pantry and much more of office floor plan details.

Uploaded by:
Eiz
Luna
