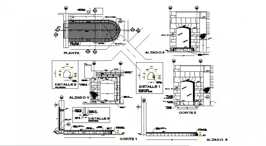
Elevation and sectional detail of fireplace drawing in autocad format
Description
Elevation and sectional detail of fireplace drawing in autocad format, roofing structure detail, plan view detail, sections line detail, dimension detail, sections detail, hidden line detail, front elevation, rear elevation detail, door and window units detail, floor level detail, hatching detail, etc.
File Type:
DWG
File Size:
184 KB
Category::
Construction
Sub Category::
Construction Detail Drawings
type:
Gold

Uploaded by:
Eiz
Luna

