House kitchen cabinet and furniture cad drawing details dwg file
Description
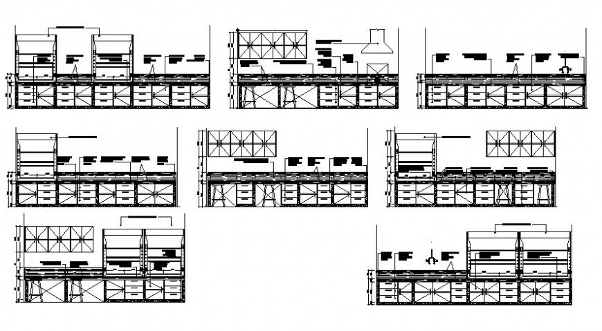
House kitchen cabinet and furniture cad drawing details that include a detailed view of kitchen cabinet elevation details, cabinet sectional and carpentry details with drawers with colours details and size details, type details etc furniture blocks for multi-purpose uses for cad projects.

Uploaded by:
Eiz
Luna

